For Sale:
980 W Rock View Dr
Hurricane,
UT
84737
Home - MLS #2105986
Single Family Home for Sale in Hurricane
Utah MLS # 2105986
2 Bathrooms
2 Garage
Price per sq ft: $307
Price / finished sq ft: $307
Year Built: 2025
.40 Acres (17,424 sq ft)
$1 / year taxes
No basement
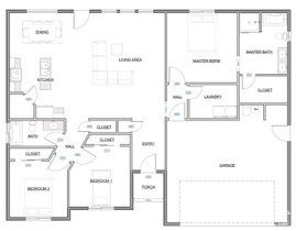
Rooms / Layout
| Sq Ft | Beds | Baths | Laundry | |
|---|---|---|---|---|
| Floor 1 | 1596 | 3 | 2 | 1 |
Features and Schools
To view homes, call (801) 829-1560. Your voice message will be delivered immediately. Tony or an
agent from his team will get back with you ASAP.
Or, REQUEST A PERSONAL SHOWING of 980 W Rock View Dr with Tony Fantis or his team of Realtors®. Listing courtesy of Dusty Wright with KW Ascend Keller Williams Realty.
980 W Rock View Dr - $489,900
Home Description
Brand new 3-bedroom, 2-bath home on a spacious .40-acre lot with no HOA, plenty of room to add an RV garage, ADU, or both. Thoughtfully designed with a split floor plan, the primary suite is tucked on one side of the home, while the additional bedrooms sit on the other. The open great room, kitchen, and dining areas feature lots of windows to showcase the panoramic views of Pine Valley Mountain, the Hurricane Cliffs, and surrounding green fields. Modern finishes include quartz countertops, tiled showers, and no carpet in the main living spaces. Enjoy sunsets and summer rainstorms from the large covered patio, or take advantage of the oversized 2-car garage for extra storage. With no homes behind you, this property combines privacy, functionality, and unbeatable views in every direction. *All information is deemed reliable but not guaranteed. Buyer to verify all.
Statistics
Single Family Home Prices in Hurricane
Price per Square Foot in Hurricane
Single Family Home Prices in 84737
Price per Square Foot in 84737
980 W Rock View Dr, Hurricane, UT - MLS # 2105986
Tony Fantis, Realtor®

Price per square foot and price per finished square foot are estimated based on data supplied by the listing broker. Square footage should be confirmed by a licensed appraiser. Google street view is approximate and historical, which may not reflect the most current view of a neighborhood. Price history data for homes and condos reflects the date the information was received from the MLS.