For Sale:
420 Lotus Dr
Fish Haven,
ID
83287
Home - MLS #2091297
Single Family Home for Sale in Fish Haven
Utah MLS # 2091297
4 Bathrooms
4 Garage
Price per sq ft: $425
Price / finished sq ft: $425
Year Built: 2025
.95 Acres (41,382 sq ft)
$1 / year taxes
HOA: $1500/year
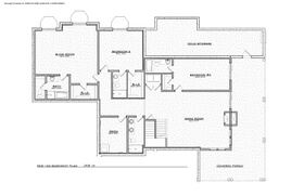
Basement: 100% Finished (Approx. 2,408 SqFt)
Rooms / Layout
| Sq Ft | Beds | Baths | Laundry | |
|---|---|---|---|---|
| Floor 1 | 2401 | 2 | 2 | 1 |
| Basement* | 2408 | 3 | 2 | 1 |
Features and Schools
To view homes, call (801) 829-1560. Your voice message will be delivered immediately. Tony or an
agent from his team will get back with you ASAP.
Or, REQUEST A PERSONAL SHOWING of 420 Lotus Dr with Tony Fantis or his team of Realtors®. Listing courtesy of Gary McKee with Bear Lake Realty, Inc.
420 Lotus Dr - $2,043,000
Home Description
NEW BUILD in The Reserve at Bear Lake! Great floor plan with all 5 bedrooms having their own bathrooms! One of the 5 bedrooms is a huge bunk room (lower level) and a dedicated office could be a 6th bedroom if wanted. Open kitchen/dining/great room, a second big family room/game room (lower level), massive covered deck and lower patio area, fireplaces on both levels, laundry rooms on both levels, a huge cold storage room and a 4 car garage complete this plan. Foundation is done, buyer will be able to customize colors and finishes. Once an offer has been accepted, will take around 6 months to finish. Excellent vacation home, nightly rental or permanent residence! Reserve amenities include: Clubhouse, fitness room, two heated, seasonal pools, year round jot tub, splash pad, poolside pavilion, sports cour, playground and gated BEACH ACCESS! Fish Haven Canyon for ATV/UTV, snowmobiling, snowshoeing, hiking, mountain biking. Bear Lake State Park Marina 10 min; Beaver Mountain Ski Resort 25 min.
Statistics
Single Family Home Prices in Fish Haven
Price per Square Foot in Fish Haven
Single Family Home Prices in 83287
Price per Square Foot in 83287
420 Lotus Dr, Fish Haven, ID - MLS # 2091297
Tony Fantis, Realtor®

Price per square foot and price per finished square foot are estimated based on data supplied by the listing broker. Square footage should be confirmed by a licensed appraiser. Google street view is approximate and historical, which may not reflect the most current view of a neighborhood. Price history data for homes and condos reflects the date the information was received from the MLS.