For Sale:
2805 W Browns Meadow Rd #102
Eagle Mountain,
UT
84013
Home - MLS #2081426
Single Family Home for Sale in Eagle Mountain
Utah MLS # 2081426
6 Bathrooms
3 Garage
Price per sq ft: $171
Price / finished sq ft: $276
Year Built: 2025
1.00 Acres (43,560 sq ft)
$1 / year taxes
Basement: % Finished (Approx. 0 SqFt)
Rooms / Layout
| Sq Ft | Beds | Baths | Laundry | |
|---|---|---|---|---|
| Floor 2 | 1272 | 3 | 2 | |
| Floor 1 | 1997 | 1 | 2 | 1 |
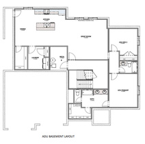
| Basement* | 1997 | 4 | 2 |
Features and Schools
To view homes, call (801) 829-1560. Your voice message will be delivered immediately. Tony or an
agent from his team will get back with you ASAP.
Or, REQUEST A PERSONAL SHOWING of 2805 W Browns Meadow Rd #102 with Tony Fantis or his team of Realtors®. Listing courtesy of Troy Noble with COMMUNIE RE.
2805 W Browns Meadow Rd #102 - $902,500
Home Description
Browns Meadow at Eagle Mountain, built by Hillwood Homes, presents our Blossom plan, featuring primary on main living, double height great room, and spacious secondary bedrooms on a 1 acre lot. Luxurious included features include quartz countertops, stained cabinets, and 9' basement ceilings. Optional finished basement adds four additional bedrooms and two full bathrooms with the options to make it an ADU. Browns Meadow features acre lots adjacent to prime hiking, biking, and off-roading access. Detached garages and shops available. Hillwood Homes offers fully customizable building on all plans. Upgrade credits and closing cost concessions available with preferred lender. Contact listing agent for details on customizations, credits, and availability. Images reflect previously built homes and may show upgrades, alternate plans, or unavailable features.
Statistics
Single Family Home Prices in Eagle Mountain
Price per Square Foot in Eagle Mountain
Single Family Home Prices in 84013
Price per Square Foot in 84013
2805 W Browns Meadow Rd #102, Eagle Mountain, UT - MLS # 2081426
Tony Fantis, Realtor®

Price per square foot and price per finished square foot are estimated based on data supplied by the listing broker. Square footage should be confirmed by a licensed appraiser. Google street view is approximate and historical, which may not reflect the most current view of a neighborhood. Price history data for homes and condos reflects the date the information was received from the MLS.